A Porch for All Seasons

This porch in Arlington, Virginia, was built for a family that wanted Arts and Crafts style, space for a budding family, and a raised deck in back for relaxing on lazy afternoons. But the deck got so much sun that they couldn’t use it. Instead they commissioned a screened-in porch in its footprint.
The new porch, which is accessed via the family room, overlooks nearby treetops and offers the family a place to unwind. French doors lead to a small deck for grilling.
The Plan

The homeowner collaborated with the designer/builder of the house, Brian McCracken, to come up with a plan for the new 10-by-14-foot covered porch, which went up on the existing deck framing. Not wanting to forgo open-air grilling, however, he added a scaled-down 6-by-7 deck—which did require new footings—off the end of it. A square-baluster railing, chunky columns, tongue-and-groove ipe flooring, and lots of trimwork details give the new back room front-porch polish. Says McCracken, “You feel like you’re in another room of the house, not just an outdoor space.”
The original 6×6 deck supports were wrapped with Azek boards to create a beefier look.
Coordinated Look

Arts and Crafts-style trim with square columns and exposed beams tie in with the rest of the home’s architectural detailing. Reproduction pendant lights hang slightly below the blades of the ceiling fan, so there’s no strobe effect when it’s in use.
Dressed Up

A square-balustar railing dresses up the screened-in area. It also provides a buffer between the screen panels and kids and dogs that might rub up against it, causing wear and tear. The screen panels stop a half-inch above the floor, protecting the frames from water damage when rain accumulates.
Latte Ledge

The top rail’s ledge is deep enough to hold a drink glass, meaning this porch needs fewer tables. It is supported by chunky, curved brackets.
Game Room

Griffin and Connor Morche, both 9, use the porch as a quiet place for board-game maneuvers.
Gable Porch Ceiling

The tongue-and-groove beadboard ceiling rises to a symmetrical peak as though it were the underside of a gable rather than a shed roof. It’s painted in a pale blue, in keeping with the tradition of making a porch ceiling reminiscent of clear skies. The exposed beams and wall-paneling details are painted a custom green.
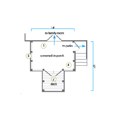
Before Floor Plan

The old pressure-treated deck connected to the family room and to a lower-level patio via an outdoor stairway.
What They Did

1. Reused the original framing: Because the deck footings were able to withstand the load of the new porch, which was designed in the same footprint, the contractor could strip off the old deck boards and railings and build on existing framing.
2. Included a small deck: Adding a 6-by-7-foot deck for barbecuing—making trips up and down the stairs to the patio below unnecessary—required new footings and framing.
3. Put up a roof and airy walls: A new shed roof shelters the porch and the peaked ceiling underneath it. Wall panels were made from charcoal-colored fiberglass screening sandwiched between two frames built from baluster stock; they sit outside the porch railing. Prepainting the stock for the panels kept the mesh pristine.
4. Used rot-resistant materials: Mold- and decay-resistant ipe covers the floors. Oil-based caulks keep small spaces watertight, and Azek PVC planks trim out spots where moisture could rest or seep in, such as the column bases and top rails.
